Gå til hovedinnhold

Lofoten 76

En stilren og innholdsrik hytte som byr på hyggelige hyttestunder både inne og ute. Sjenerøse vindusflater i front forlenger spiseplassen mot naturen og gjør enhver hyttestund unik og spesiell.

Blå tomt
4 040 000,-
Rød tomt
4 540 000,-
Grønn tomt
5 090 000,-
Gul tomt
5 790 000,-
Lilla tomt
6 590 000,-
Boligtype
Hytte
BRA-i
65.2 m²
Bad
1
Antall etasjer
2

Tomtevisning

lørdag 28 mars

10:00

-

14:00

Legg til i kalender

Sørlandsleia hyttefelt

Nøkkelinfo

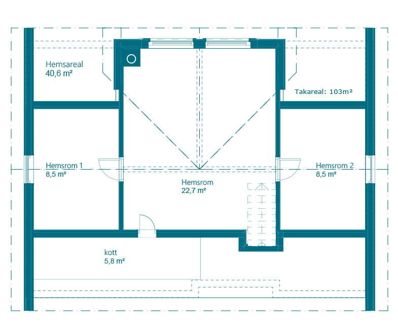
Grunnplan:
Stue, kjøkken, spiseplass, 2 soverom, bad/WC, entré.

Hems / 2. etasje
Hemsstue og 2 soverom. *Soverom og stue på hems har lavere takhøyde, og inngår ikke i BRA.

Simen Gjelstad

Adm. direktør


Hyttefelt


Se hva denne hyttemodellen vil koste på de ulike tomtene

Andre hytter


Frøya 75

Fra NOK 4 140 000

Frøya 90

Fra NOK 4 440 000

Frøya 105

Fra NOK 4 740 000

Furutangen 75

Fra NOK 3 840 000

Homborøy

Fra NOK 4 940 000

Lofoten 76

Fra NOK 4 040 000

Lofoten 85

Fra NOK 4 190 000

Lofoten 94

Fra NOK 4 440 000

Lofoten 94 Panorama

Fra NOK 4 590 000

Lofoten 103

Fra NOK 4 640 000

Lofoten 112

Fra NOK 4 790 000

Lofoten Generasjon

Fra NOK 4 890 000

Polar 88

Fra NOK 4 240 000

Polar 98

Fra NOK 4 490 000

Polar 110

Fra NOK 4 690 000

Polar 118

Fra NOK 4 940 000

Rognli Panorama m. hems

Fra NOK 4 990 000

Rondablikk 85

Fra NOK 4 090 000

Rondablikk 100

Fra NOK 4 390 000

Tromøy

Fra NOK 4 590 000

U-3000

Fra NOK 4 940 000

U-3020

Fra NOK 4 390 000

U-3040 m. saltak

Fra NOK 5 640 000

U-3040

Fra NOK 5 240 000

U-3060

Fra NOK 5 690 000