Gå til hovedinnhold

Rognli Panorama m. ett plan

Rognli Panorama på ett plan appellerer til utsiktstomter og naturskjønne omgivelser. De store panoramavinduene
i stuen strekker seg helt opp til mønet, noe som gir ekstra mye lys og trekker landskapet visuelt inn i rommet.
Hyttas H-form gir gode, lune uterom og skaper en god atmosfære for alle årstider.

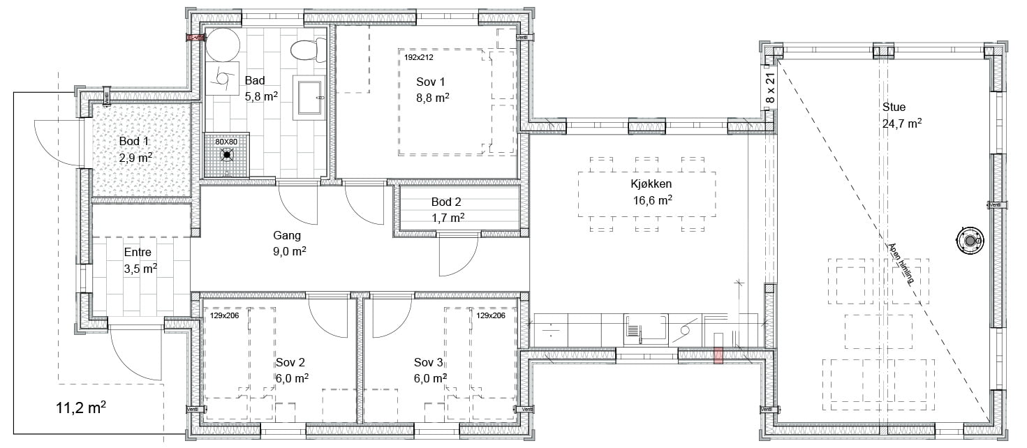
I denne hytta får du en åpen og god planløsning med flere soner som gir rom for hyttehygge til store og små. Alt på ett plan gjør oppholdet både praktisk og lettvint. En moderne peis er plassert i stuen i enden av hytten, og blir et naturlig blikkfang i det du kommer innenfor døren. Stuen har god takhøyde, noe som gir et luftig oppholdsrom.
Åpningen mellom stue og kjøkken binder sonene sammen og er med på å skape god harmoni. Videre er det tre gode soverom og et fint bad. Bod og utvendig sportsbod gjør det enkelt å holde orden på utstyr.

Blå tomt
4 640 000,-
Rød tomt
5 140 000,-
Grønn tomt
5 690 000,-
Gul tomt
6 390 000,-
Lilla tomt
7 190 000,-
Boligtype
Hytte
BRA-i
86.9 m²
Bad
1
Antall etasjer
1
Terrasse
36.2 m²

Tomtevisning

lørdag 28 mars

10:00

-

14:00

Legg til i kalender

Sørlandsleia hyttefelt

Nøkkelinfo

Grunnplan:
Stue, kjøkken, 3 soverom, bad, gang, uvendig bod og innvendig bod

Simen Gjelstad

Adm. direktør


Hyttefelt


Se hva denne hyttemodellen vil koste på de ulike tomtene

Andre hytter


Frøya 75

Fra NOK 4 140 000

Frøya 90

Fra NOK 4 440 000

Frøya 105

Fra NOK 4 740 000

Furutangen 75

Fra NOK 3 840 000

Homborøy

Fra NOK 4 940 000

Lofoten 76

Fra NOK 4 040 000

Lofoten 85

Fra NOK 4 190 000

Lofoten 94

Fra NOK 4 440 000

Lofoten 94 Panorama

Fra NOK 4 590 000

Lofoten 103

Fra NOK 4 640 000

Lofoten 112

Fra NOK 4 790 000

Lofoten Generasjon

Fra NOK 4 890 000

Polar 88

Fra NOK 4 240 000

Polar 98

Fra NOK 4 490 000

Polar 110

Fra NOK 4 690 000

Polar 118

Fra NOK 4 940 000

Rognli Panorama m. hems

Fra NOK 4 990 000

Rondablikk 85

Fra NOK 4 090 000

Rondablikk 100

Fra NOK 4 390 000

Tromøy

Fra NOK 4 590 000

U-3000

Fra NOK 4 940 000

U-3020

Fra NOK 4 390 000

U-3040 m. saltak

Fra NOK 5 640 000

U-3040

Fra NOK 5 240 000

U-3060

Fra NOK 5 690 000