Gå til hovedinnhold

Tromøy

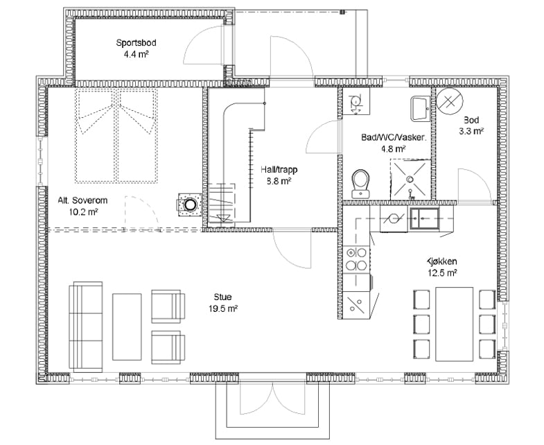
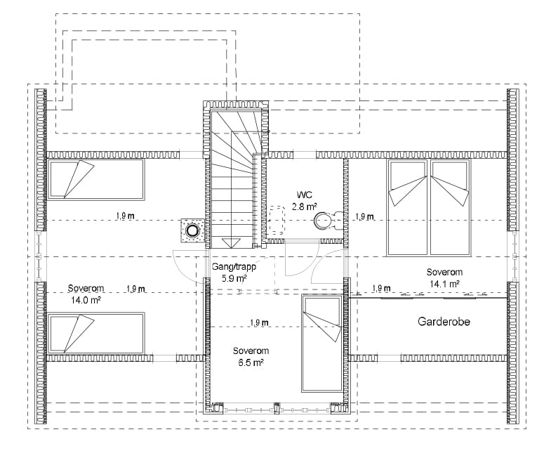
Tromøy er en tradisjonell sørlandshytte kledd i mørke farger for å passe inn i det flotte terrenget på Sørlandsleia. I første etasje har man stor stue- og kjøkkenløsning, bad og mulighet for et soverom dersom man ønsker det. Hytta har to boder, en med inngang fra kjøkkenet, og en med inngang utenfra. Hytta har en effektiv hemsløsning med god takhøyde der man i tillegg til tre romslige soverom har fått plass til toalett.

Med godt utnyttet hemsetasje blir hyttas fotavtrykk mindre. Dette gjør at man i tillegg til hytta
har mulighet til å for eksempel bygge et anneks eller utebod i fremtiden.

Blå tomt
4 590 000,-
Rød tomt
5 090 000,-
Grønn tomt
5 640 000,-
Gul tomt
6 340 000,-
Lilla tomt
7 140 000,-
Boligtype
Hytte
BRA-i
94.9 m²
Bad
1.5
Antall etasjer
2

Tomtevisning

lørdag 28 mars

10:00

-

14:00

Legg til i kalender

Sørlandsleia hyttefelt

Nøkkelinfo

Grunnplan:
Stue, kjøkken, soverom, bad, vask/bod og sportsbod.

Hems / 2. etasje
Gang, tre soverom, WC og terrasse.

Simen Gjelstad

Adm. direktør


Hyttefelt


Se hva denne hyttemodellen vil koste på de ulike tomtene

Andre hytter


Frøya 75

Fra NOK 4 140 000

Frøya 90

Fra NOK 4 440 000

Frøya 105

Fra NOK 4 740 000

Furutangen 75

Fra NOK 3 840 000

Homborøy

Fra NOK 4 940 000

Lofoten 76

Fra NOK 4 040 000

Lofoten 85

Fra NOK 4 190 000

Lofoten 94

Fra NOK 4 440 000

Lofoten 94 Panorama

Fra NOK 4 590 000

Lofoten 103

Fra NOK 4 640 000

Lofoten 112

Fra NOK 4 790 000

Lofoten Generasjon

Fra NOK 4 890 000

Polar 88

Fra NOK 4 240 000

Polar 98

Fra NOK 4 490 000

Polar 110

Fra NOK 4 690 000

Polar 118

Fra NOK 4 940 000

Rognli Panorama m. hems

Fra NOK 4 990 000

Rondablikk 85

Fra NOK 4 090 000

Rondablikk 100

Fra NOK 4 390 000

Tromøy

Fra NOK 4 590 000

U-3000

Fra NOK 4 940 000

U-3020

Fra NOK 4 390 000

U-3040 m. saltak

Fra NOK 5 640 000

U-3040

Fra NOK 5 240 000

U-3060

Fra NOK 5 690 000